Gorodvo.ru - Вологодские Новости
ЖКХ

На северо-западе Вологды планируется большая стройка

На северо-западе Вологды планируется большая стройка
Там возведут несколько жилых домов, детский сад и ещё несколько зданий.

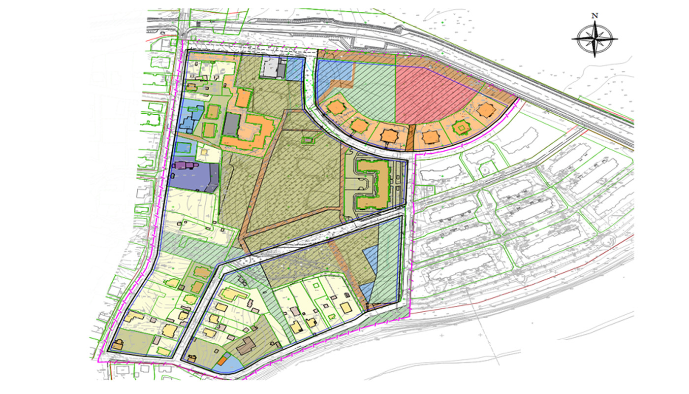
Администрация областной столицы собирается утвердить проекты планировки и межевания территории, которая находится между улицами Луговая, Бурмагиных, Парковым переулком и двумя проектируемыми улицами: общегородского и местного значения.

«Проект планировки территории разработан на часть территории городского округа в границе кадастрового квартала 35:24:0201001. Территория, в отношении которой подготовлен проект планировки, ограничена с севера – участком улично-дорожной сети от улицы Чернышевского до транспортной развязки на Белозерском шоссе со строительством автомобильного моста через реку Вологду в створе улицы Некрасова, с востока – жилым комплексом «Прибрежный», с юга – рекой Вологдой и улицей Луговой, с запада – улицей Бурмагиных», — информируют городские чиновники.

Здесь на площади 18,2 гектара до 2030 года собираются возвести пять многоквартирных жилых домов, состоящих из нескольких корпусов высотой в два этажа с мансардой. Общая площадь зданий составит 19 083 квадратных метра, а общее количество расположенных в них квартир – 357. Здесь будут жить 637 человек.

Кроме того, рядом построят двухэтажный детский сад на 172 мест. Его общая площадь составит 1055 квадратных метров. Планируется также строительство здания, где разместятся магазин, кабинет врача, ателье и помещение для физкультурно-оздоровительных занятий (общая площадь – 1013 квадратных метров), здания, где будут располагаться отделение связи, отделение банка, аптека и помещение дежурного участкового (495 квадратных метров), трансформаторной подстанции (55 квадратных метров) и других объектов.

Здесь также спроектируют три улицы протяжённостью 172,3, 244,1 и 243,8 метра соответственно. Рассчитано и количество будущих парковочных мест – 351. Проведут сети связи, электросети, газовые, тепловые, водопроводные и канализационные сети.

«Проектом планировки территории предлагается в первоочередном порядке реализовать строительство объектов инженерно-транспортной инфраструктуры для возможности освоения земельных участков, предназначенных для жилищного строительства, и по мере роста жилых домов - строительство дошкольной образовательной организации и объектов обслуживания населения, а также иных объектов, предусмотренных проектом планировки территории», — написано в проекте.

Источник фото: администрация Вологды