Администрация областной столицы приняла постановление «О наименовании элемента планировочной структуры на территории города Вологды».
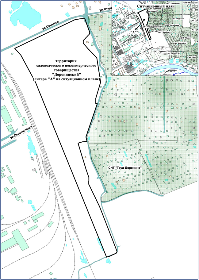
Элементу планировочной структуры на территории Вологды, расположенному вблизи улиц Саммера и Доронинская, присвоено наименование «территория садоводческого некоммерческого товарищества Доронинский».
Городскому департаменту архитектуры и градостроительства поручено разместить сведения о новом элементе в государственный адресный реестр.

Источник фото: администрация города